MC66
Nos autres maisons
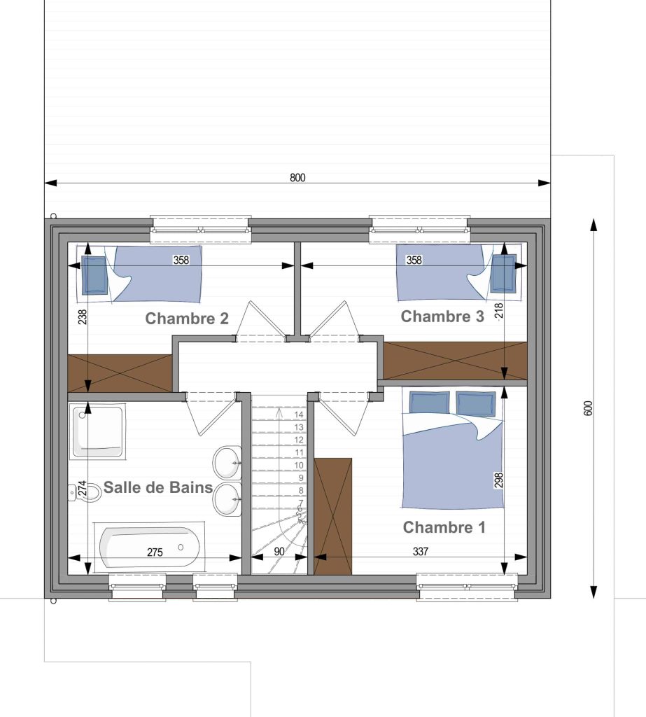
Plans
Prix
| Clé sur porte | 156.077€ htva |
|---|---|
| Gros œuvre fermé | 108.354€ htva |
| Surface totale | 96 m² |
| Prix au m² | 1.626€ htva |
Hauteur sous corniche: 4.6 m.
Angle de toiture: 35°
| Clé sur porte | 197.987€ htva |
|---|---|
| Gros œuvre fermé | 142.986€ htva |
| Surface totale | 114 m² |
| Prix au m² | 1.744€ htva |
Hauteur sous corniche: 4.6 m.
Angle de toiture: 35°
Les réalisations Maisons Compère
Les matériaux chez Maisons Compère
Autres finitions extérieures
Briques
Carrelages
Charpente
Châssis
Chauffage
Inter-ceram
Tuiles