MC96
Nos autres maisons
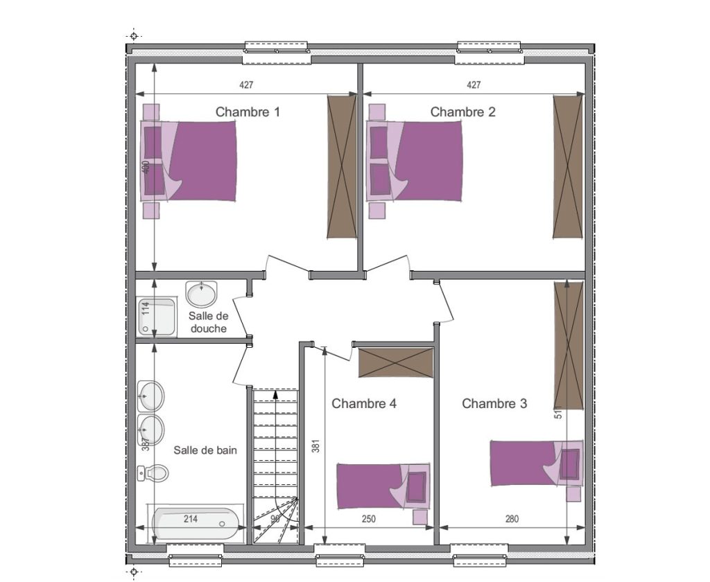
Plans
Prix
| Clé sur porte | 160.602€ htva |
|---|---|
| Gros œuvre fermé | 100.752€ htva |
| Surface totale | 145 m² |
| Prix au m² | 1.109€ htva |
Hauteur sous corniche: 4.3 m.
Angle de toiture: 35°
| Clé sur porte | 177.393€ htva |
|---|---|
| Gros œuvre fermé | 110.426€ htva |
| Surface totale | 180 m² |
| Prix au m² | 986€ htva |
Hauteur sous corniche: 4.3 m.
Angle de toiture: 35°
Les réalisations Maisons Compère
Les matériaux chez Maisons Compère
Autres finitions extérieures
Briques
Carrelages
Charpente
Châssis
Chauffage
Inter-ceram
Tuiles