MC364
Nos autres maisons
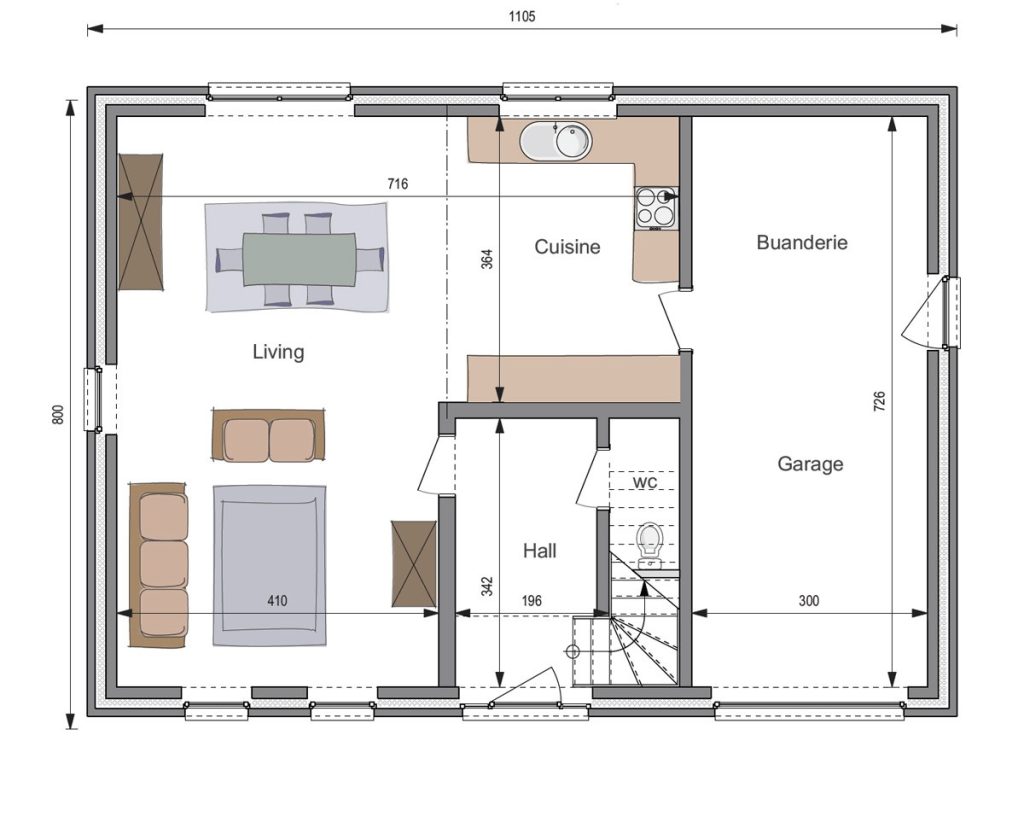
Plans
Prix
| Clé sur porte | 193.431€ htva |
|---|---|
| Gros œuvre fermé | 141.833€ htva |
| Surface totale | 140 m² |
| Prix au m² | 1.382€ htva |
Hauteur sous corniche: 5.1 m.
Angle de toiture: 30°
| Clé sur porte | 223.881€ htva |
|---|---|
| Gros œuvre fermé | 161.771€ htva |
| Surface totale | 177 m² |
| Prix au m² | 1.266€ htva |
Hauteur sous corniche: 5.1 m.
Angle de toiture: 30°
Les réalisations Maisons Compère
Les matériaux chez Maisons Compère
Autres finitions extérieures
Briques
Carrelages
Charpente
Châssis
Chauffage
Inter-ceram
Tuiles