MC332
Nos autres maisons
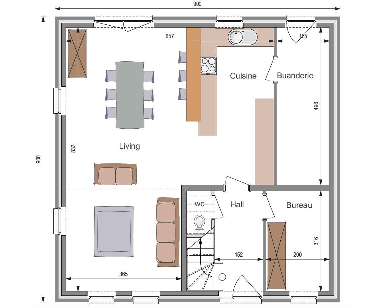
Plans
Prix
| Clé sur porte | 185.447€ htva |
|---|---|
| Gros œuvre fermé | 131.824€ htva |
| Surface totale | 130 m² |
| Prix au m² | 1.427€ htva |
Hauteur sous corniche: 5.1 m.
Angle de toiture: 35°
| Clé sur porte | 210.016€ htva |
|---|---|
| Gros œuvre fermé | 146.380€ htva |
| Surface totale | 162 m² |
| Prix au m² | 1.296€ htva |
Hauteur sous corniche: 5.1 m.
Angle de toiture: 35°
Les réalisations Maisons Compère
Les matériaux chez Maisons Compère
Autres finitions extérieures
Briques
Carrelages
Charpente
Châssis
Chauffage
Inter-ceram
Tuiles
