MC444
Nos autres maisons
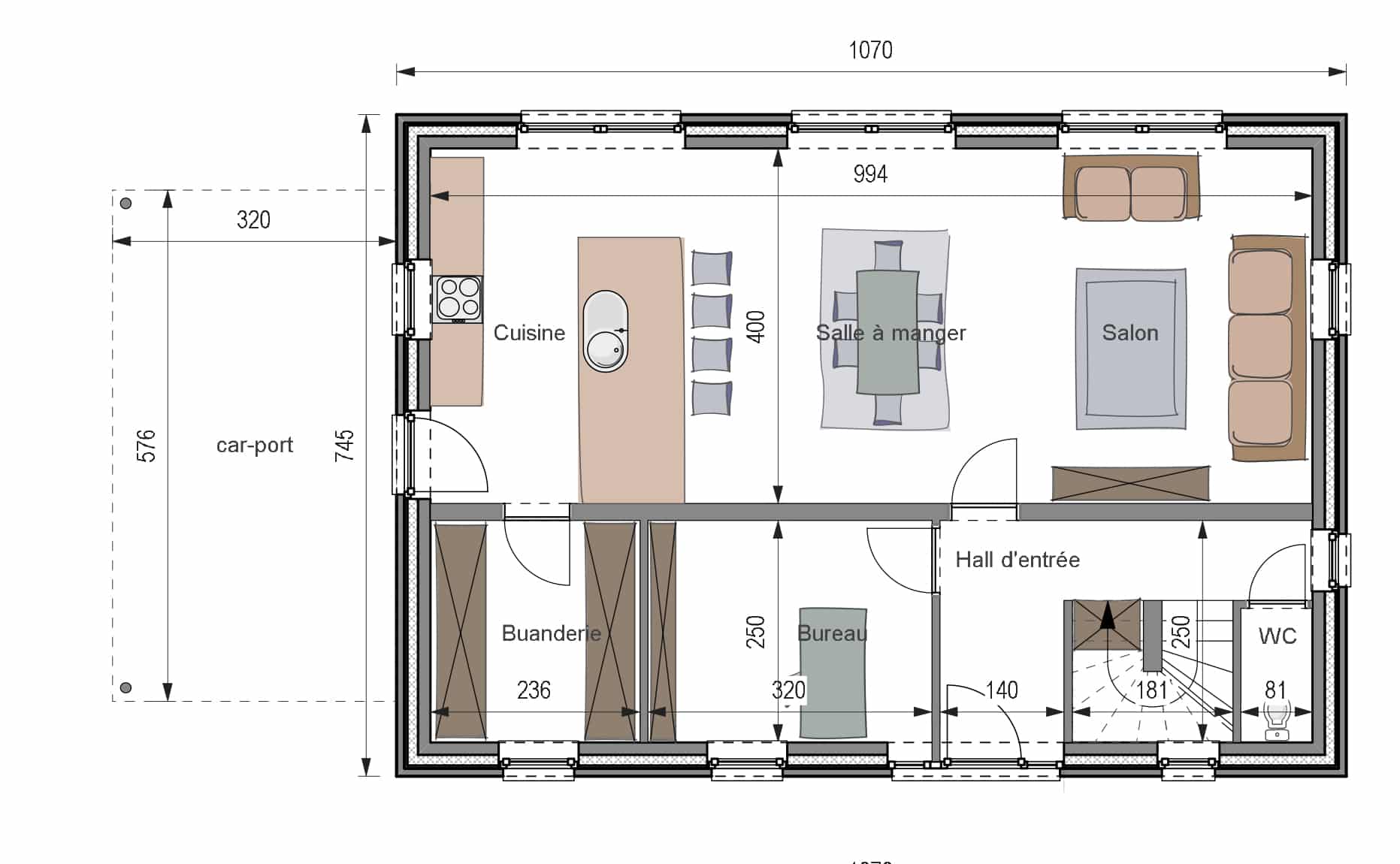
Plans
Prix
| Clé sur porte | 204.098€ htva |
|---|---|
| Gros œuvre fermé | 137.824€ htva |
| Surface totale | 159 m² |
| Prix au m² | 1.280€ htva |
Hauteur sous corniche: 4.4 m.
Angle de toiture: 35°
| Clé sur porte | 215.210€ htva |
|---|---|
| Gros œuvre fermé | 148.936€ htva |
| Surface totale | 159 m² |
| Prix au m² | 1.350€ htva |
Hauteur sous corniche: 4.4 m.
Angle de toiture: 35°
Les réalisations Maisons Compère
Les matériaux chez Maisons Compère
Autres finitions extérieures
Briques
Carrelages
Charpente
Châssis
Chauffage
Inter-ceram
Tuiles