Villa de standing en clé-sur-porte à Wagnelée

694.000€
Maisons Compère vous présente cette maison étant destinée à être une maison témoin, ce qui garantit une réalisation irréprochable.
Elle possède une superficie de plus de 350m² sur un terrain de 12 ares.
Son emplacement est particulièrement avantageux : en effet, grâce à la situation de cette villa, vous aurez accès au centre de Sombreffe, qui se trouve à seulement quelques kilomètres. Ainsi, vous pourrez profiter de divers commerces, de restaurants, d'un complexe sportif et d'une école.
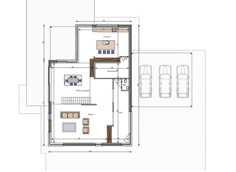
Cette somptueuse villa se compose comme suit :
Vous serez accueilli dans un spacieux hall de plus de 25m². Ensuite, vous découvrirez une réception possédant une superficie incroyable de + de 100m² comprenant un beau salon ainsi qu'une salle à manger.
L'ensemble sera agrémenté d'une cuisine ouverte.
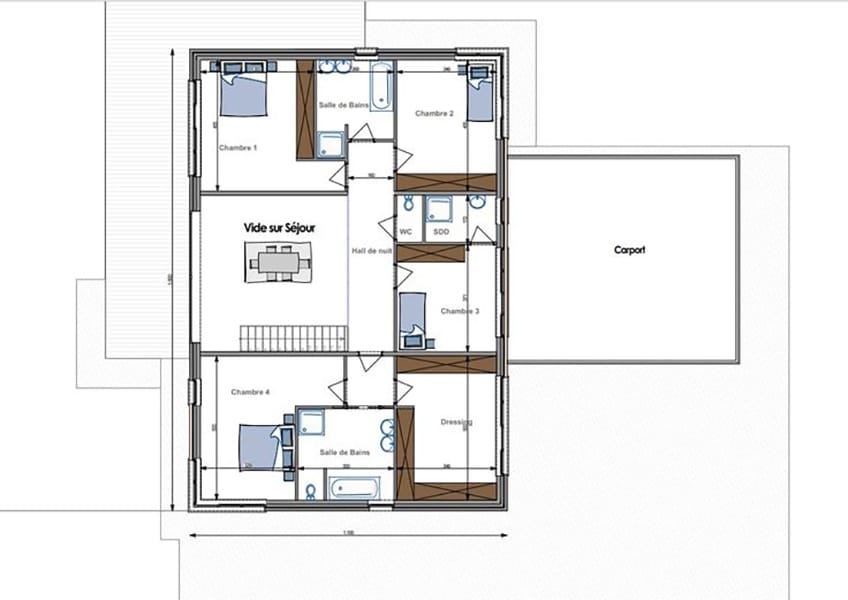
L'étage dispose de 5 grandes chambres dont la suite parentale qui profite de sa propre salle de bain.
Le hall de nuit bénéficie également de 2 autres salles de bain.
À l'extérieur, vous aurez des emplacements afin d'y stationner votre/vos véhicules.
N'attendez plus pour découvrir cette villa d'exception. Prenez rendez-vous dès à présent avec Monsieur Mariani (IPI 103.174) au 0475/23.62.76, qui se fera un plaisir de vous faire visiter ce bien unique !
Galerie du projet Villa de standing en clé-sur-porte à Wagnelée